...

Estudio

Somos un estudio de arquitectura y diseño, con taller y showroom ubicado en la zona norte de la provincia de Buenos Aires y con oficinas en Manantiales Uruguay. Nos focalizamos en crear experiencias únicas con nuestros clientes. Estamos convencidos que el buen diseño junto con una cuidada ejecución crean valor adicional. Esta búsqueda implacable se aplica en todos los campos de trabajo que asumimos.

Maria Rusconi
Jose M Gallo
proyecto, direccion y construccion
Madera seleccion
Showroom de fabrica
Nuestro taller
Showroom
Render de proyecto
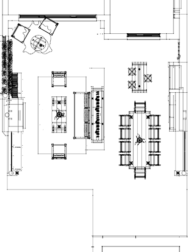
Planta
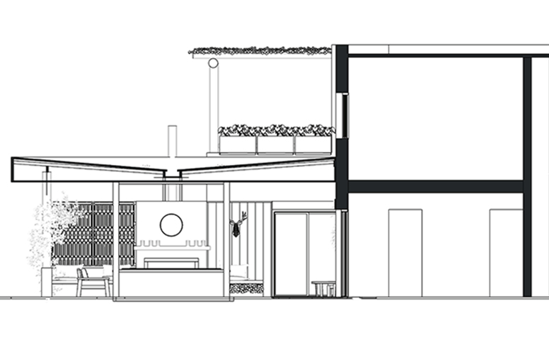
Corte y elevacion
Obra
Procesos constructivos
Render de trabajo
Distribucion espacial
Diseño de iluminación
Envios al mundo
Proceso de diseño
Producto terminado
Diseño de herrajes
Herreria en inox
Maria Rusconi - Socia

María Rusconi

Co-Fundadora

María se ocupa del diseño y desarrollo de los diferentes proyectos y productos en Maria Rusconi. Estudió Arquitectura en la Universidad de Belgrano en Buenos Aires, donde se graduó en 1997. Luego trabajó en New York como project architect en el estudio Rafael Viñoly Architects y diseñó colecciones de muebles e interiores para Laura O Buenos Aires. Disfruta jugar tenis con amigas y tiene junto con José dos hijos.

Jose Maria Gallo - Socio

José María Gallo

Co-Fundador

José es el motor del estudio. Licenciado en administración de empresas (UBA), ha pasado la mayor parte de su vida estudiando y trabajando en los campos del diseño y la arquitectura. Domina herramientas de diseño 3D. Se especializó en arquitectura y construcción en madera en USA. Tiene a cargo la administración de obras y fabricación de muebles. Ama jugar con sus hijos Justi y Lolo y surfear.